Ustroń, Śląskie

Działka 1607m², Ustroń

418.000 ID: 4270226
  • Typ ogłoszenia Sprzedam
  • Powierzchnia [a] 10-20
  • Dodane przez agencja
  • Typ działki Inwestycyjna

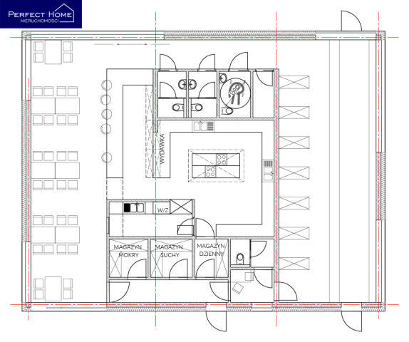
Oferujemy na sprzedaż działkę usługowo-handlową w idealnej lokalizacji, tuż przy drodze wojewódzkiej 941.Ze względu na położenie i bardzo dobrą komunikację jest to idealna nieruchomość dla Inwestora pod działalność usługową taką jak: Centrum Narciarsko-Rowerowe, Centrum Sportowe, Centrum Stomatologiczne, Centrum Rehabilitacyjne, Centrum Medyczne, Sklep...Dane nieruchomości:* nr działki 2623/18 przy ul Pod Grapą (droga gminna), dojazd od ul. Wiślańskiej* powierzchnia 1607 m2* dla działki wydane zostały warunki zabudowy na budowę budynku usługowego, wg załączonej wizualizacji. * wymiary ok 50x32Dla działki wydano warunki zabudowy:* budynek wielofunkcyjny o charakterze usługowym, handlowym i garażowym* nie jest możliwe prowadzenie usług uciążliwych (stacje paliw, magazyny, serwisy samochodowe itp)* powierzchnia zabudowy 11-15,5%Media:* woda miejska w działce* gaz w granicy* prąd w granicy* kanalizacja miejska w drodze gminnej Atuty działki:* położona przy trasie o dużym natężeniu ruchu* płaska* dogodny dojazd* istnie możliwość uzyskania warunków zabudowy na budowę budynku mieszkalnegoGorąco polecam i zapraszam na prezentację.Katarzyna Szydłowskatel. 533 859 079Nasz doradca kredytowy pomoże w uzyskaniu najkorzystniejszego kredytu hipotecznego na zakup bądź remont nieruchomości.Treść niniejszego ogłoszenia nie stanowi oferty handlowej określonej w art. 66 i następnych K.C.Informacje dotyczące nieruchomości zostały sporządzone na podstawie oświadczeń, mają charakter wyłącznie informacyjny, mogą one ulec zmianie lub podlegać aktualizacji. Jednocześnie dokładamy wszelkich starań aby każda oferta była starannie przygotowana oraz aktualna. Wszystkie opublikowane opisy, rysunki, zdjęcia, informacje podlegają prawom autorskim. Kopiowanie, rozpowszechnianie oraz korzystanie z materiałów w sposób wykraczający poza dozwolony użytek określony przepisami ustawy z dnia 4 lutego 1994 r. o prawie autorskim i prawach pokrewnych nie jest dozwolone.Kupujący pokrywa koszty notarialne, podatek PCC jeśli występuje oraz prowizję dla Biura Nieruchomości. Treść niniejszego ogłoszenia nie stanowi oferty handlowej w rozumieniu Kodeksu Cywilnego.Informacje dotyczące nieruchomości zostały sporządzone na podstawie oświadczeń i nie są ofertą w rozumieniu przepisów prawa, mają charakter wyłącznie informacyjny i mogą podlegać aktualizacji. Wszystkie opublikowane opisy, rysunki, zdjęcia, informacje podlegają prawom autorskim. Kopiowanie, rozpowszechnianie oraz korzystanie z materiałów w sposób wykraczający poza dozwolony użytek określony przepisami ustawy z dnia 4 lutego 1994 r. o prawie autorskim i prawach pokrewnych nie jest dozwolone.Oferta wysłana z programu IMO dla biur nieruchomości
Oferta nr: 609. Kontakt do agenta: perfecthome, ,Katarzyna Szydłowska, ,kasia.perfecthome@gmail.com,